Бесплатно по России
8 800 200 68 98
Телефон в С-Пб
8 812 409 39 93
Перезвонить мне
Каталог домов
Фильтр
Площадь, м
Этажность
Общая площадь, м2

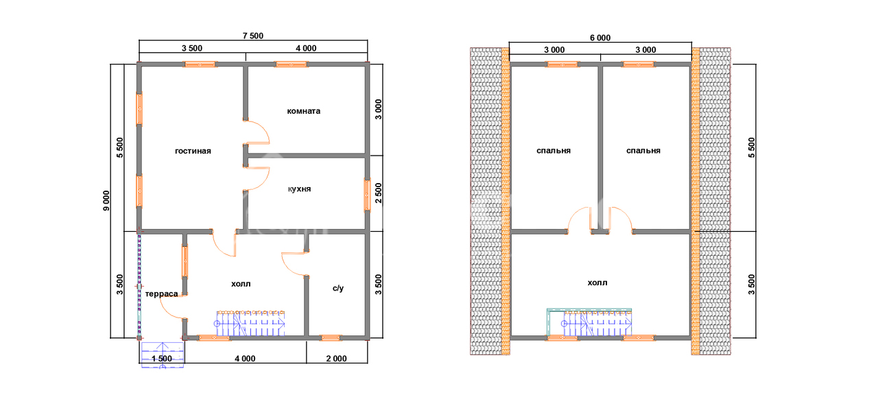
Проект «Ильмень Д-20»

Размеры: 7.5x9 м  |  Площадь: 121 кв.м  |  С мансардным этажом
Построим в каркасном исполнении
Стоимость под ключ
Стоимость под усадку
Общее описание и комплектация дома
Под ключ
Фундамент и основание дома
Фундамент По желанию Заказчика (не входит в стоимость дома)
Обвязка Не строганный брус 150х150 мм (200×150 мм) естественной влажности
Половые лаги (усиленные) Брус 100х150 мм, с шагом 80 см (+/- 5 см)
Черновой пол Обрезная доска 20×100 мм (естественной влажности) укладывается «всплошную» по череповым брускам 40×50 мм (естественной влажности)
Чистовой пол Шпунтованная половая доска 28 мм камерной сушки
Стены и перегородки
Сруб дома Профилированный (строганный) брус 90х140 мм (140х140 мм / 190×140 мм). Атмосферной сушки. Тип бруса на выбор: полукруг (под блок-хаус) или прямой
Перегородки 1 этажа Профилированный брус сечением 90х140 мм
Сборка сруба Венцы между собой собираются на деревянные берёзовые нагеля. Между венцами прокладывается джут
Рубка углов Теплый угол
Высота потолков 1 этаж 2,30 +/- 5см (17 венцов)2 этаж 2,25 +/- 5см
Межэтажные перекрытия/подстропильные Обрезная доска 40 х 150 мм(естественной влажности) с шагом 80 см(+/- 5см)
Крыша и кровля
Стропильная система Обрезная доска 40 х 100 мм (естественной влажности)  с шагом 80(+/- 5см). С прокладкой паро-гирдоизоляции (Изоспан или его аналоги) и контр-обрешеткой 20х50 мм.
Обрешетка Обрезная доска 100 х 20 мм (естественной влажности), с шагом 20-30см.
Кровля Волнистый битумный лист Ондулин (возможен выбор расцветки: шоколад, бордо, зеленая листва)
Высота конька 3,5 м
Выпуски, свесы 0,30 м. Подшиваются хвойной вагонкой камерной сушки
Мансарда
Фронтоны/каркас мансарды Обрезная доска 40х100 мм, естественной влажности
Снаружи Зашивается хвойной вагонкой (класса А, В) камерной сушки (стыки допускаются). Устанавливаются вентиляционные решетки
Отделка и дополнения
Потолок 1-го этажа Зашиваются хвойной вагонкой (класса А, В ) камерной сушки
По стыкам стен потолка / пола внутри помещений Прибивается хвойный плинтус
Утепление – пол / потолок 1-го этажа Минеральная вата КНАУФ 50 мм (либо аналоги) с прокладкой паро-гидроизоляции Изоспан В
Утепление мансарды (2 этаж) Минеральная вата КНАУФ 50 мм (либо аналоги) с прокладкой паро-гидроизоляции Изоспан В
Стены и потолок мансарды Зашивается хвойной вагонкой (класса А , В) камерной сушки (стыки допускаются)
Перегородки мансарды Обрезная доска 40 х 100 мм, зашиваются хвойной вагонкой (класса А , В) камерной сушки
Двери Входная: металлическая утепленная (производство Россия)
Межкомнатные: филенчатые
Обналиченные с отделкой откосов
Окна Деревянные имитация стеклопакета с двойным остеклением: 1,0х1,2 м и 0,6х0,6 м, обналиченные с отделкой откосов. Комплектуются фурнитурой. Над окнами устанавливаются отливы.
Лестница С приступком, одномаршевая. Устанавливаются ступени.
Терраса Устанавливаются столбы с усадочными лифтами (домкратами), перила с плоскими балясинами. Потолок зашивается хвойной вагонкой (класса А, В) камерной сушки
Проемы окон и дверей Устанавливаются деревянные направляющие  (ройки)
Под усадку
Фундамент и основание дома
Фундамент По желанию Заказчика (не входит в стоимость дома)
Обвязка Не строганный брус 150х150 мм (200x150 мм) естественной влажности
Половые лаги (усиленные) Брус 100х150 мм, с шагом 80 см (+/- 5 см)
Черновой пол Обрезная доска 20x100 мм (естественной влажности) укладывается «всплошную» по череповым брускам 40x50 мм (естественной влажности)
Стены и перегородки
Сруб дома Профилированный (строганный) брус 90х140 мм (140х140 мм / 140х190 мм). Атмосферной сушки. Тип бруса на выбор: полукруг (под блок-хаус) или прямой. Все  проемы окон и дверей перевязываются.
Перегородки 1 этажа Профилированный брус сечением 90х140 мм
Сборка сруба Венцы между собой собираются на деревянные берёзовые нагеля. Между венцами прокладывается джут
Рубка углов Теплый угол
Высота потолков 1 этаж – 2,30 м +/- 5 см (17 венцов) 2 этаж – 2,25 м +/- 5 см
Межэтажные перекрытия/подстропильные Брус 40х150 мм (естественной влажности) с шагом 80 см(+/- 5см)
Крыша и кровля
Стропильная система Обрезная доска 40х100мм (естественной влажности), с шагом 80 см(+/- 5см). С прокладкой паро-гирдоизоляции (Изоспан или его аналоги) и контр-обрешеткой 20х50 мм.
Обрешетка Обрезная доска 100х20 мм (естественной влажности), с шагом 20-30 см
Кровля Волнистый битумный лист Ондулин (возможен выбор расцветки: шоколад, бордо, зеленая листва)
Высота конька 3,5 м
Выпуски, свесы 0,30 м. Подшиваются хвойной вагонкой камерной сушки
Мансарда
Фронтоны / каркас мансарды Обрезная доска 40x100 естественной влажности.Снаружи обшиваются хвойной вагонкой класса А-B.
Дополнения
Терраса Устанавливаются столбы с усадочными лифтами (домкратами).
Дополнительные услуги
Свайно-винтовой фундамент 183 000 руб.
Опорно-столбчатый фундамент 54 000 руб.
Двойная обвязка основания 40 400 руб.
Обработка основания, лаг, черновых полов 37 000 руб.
Сухой профилированный брус 90х140мм 139 000 руб.
Сухой профилированный брус 140х140мм 165 100 руб.
Сухой профилированный брус 190х140мм 182 500 руб.
Дополнительный венец из бруса 90х140мм 30 600 руб.
Дополнительный венец из бруса 140х140мм 39 800 руб.
Замена наружной отделки фронтонов на блок-хаус 27 500 руб.
Замена деревянных окон на двухкамерные окна ПВХ 72 900 руб.
Дополнительное утепление в 50 мм 28 800 руб.
Замена кровли на металлочерепицу «СуперМонтеррей» (толщина 0,40-0,45мм) 69 300 руб.
Водосточная система для крыши пластиковая (цвет на выбор: коричневый, белый) 50 400 руб.
Бытовка 2х3м для проживания бригады 27 000 руб.
Аренда генератора на весь срок строительства (бензин заказчика) 7 500 руб.
Пружинный узел Сила 250 руб./шт.
Деревянный туалет 15 000 руб.
Обработка стропильной системы и порешетника 47 000 руб.
Замена размерности бруса перегородок на 140х140 мм. 59 700 руб.
Замена половой доски на 36 мм 40 600 руб.
Уменьшение шага половых лаг, стропильной системы и межэтажного перекрытия на 0,6 м. 40 200 руб.
Дополнительный венец из бруса 190х140мм 50 100 руб.
Итоговая стоимость: 1685000 руб. Оставить заявку

Остались вопросы?

оставьте Ваш телефон и мы перезвоним Вам в ближайшее время


    Нажимая на кнопку, вы даете согласие на обработку персональных данных