Бесплатно по России
8 800 200 68 98
Телефон в С-Пб
8 812 409 39 93
Перезвонить мне
Каталог домов
Фильтр
Площадь, м
Этажность
Общая площадь, м2

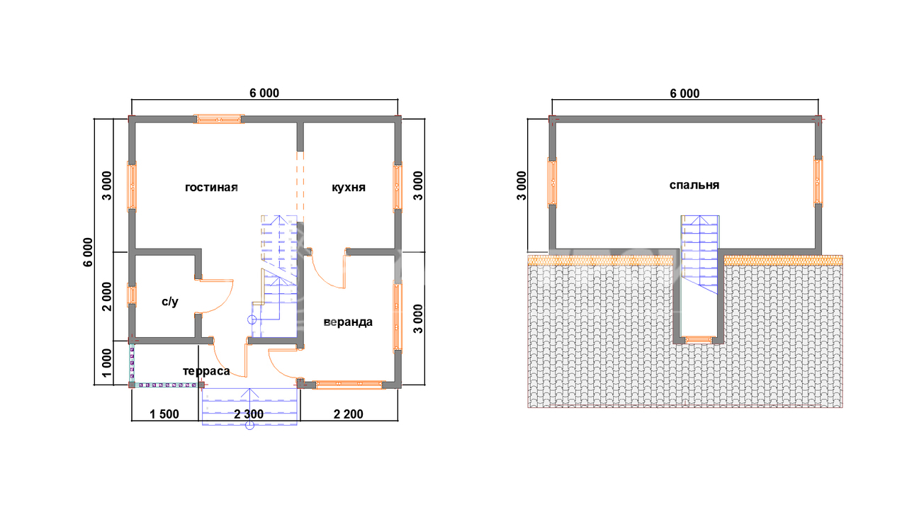
Проект «Кивач Д-3»

Размеры: 6x6 м  |  Площадь: 54 кв.м  |  Полутораэтажный
Построим в каркасном исполнении
Стоимость под ключ
Стоимость под усадку
Общее описание и комплектация дома
Под ключ

14

Фундамент и основание дома
Фундамент По желанию Заказчика (не входит в стоимость дома)
Обвязка Не строганный брус 150х150 мм (200×150 мм) естественной влажности
Половые лаги (усиленные) Брус 100х150 мм (100х200 мм), с шагом 0,8 м (+/- 5 см)
Черновой пол Обрезная доска 20×100 мм (естественной влажности) укладывается «всплошную» по череповым брускам 40×50 мм (естественной влажности)
Чистовой пол Шпунтованная половая доска 28 мм камерной сушки
Стены и перегородки
Стены 1 этажа Профилированный (строганный) брус  (140х140 мм / 190×140 мм). естественной влажности. Тип бруса на выбор: полукруг (под блок-хаус) или прямой
Перегородки 1 этажа Профилированный брус сечением 90х140 мм естественной влажности
Сборка сруба Венцы между собой собираются на деревянные берёзовые нагеля. Между венцами прокладывается джут
Рубка углов Теплый угол
Высота потолков 1 этаж 2,30 +/- 5см (17 венцов)2 этаж 2,30
Межэтажные перекрытия/подстропильные Доска обрезная  40х150 мм. (50х200 мм) (естественной влажности) с шагом 0,8 м(± 5см) с паро-гидроизоляцией Изоспан (или его аналоги)
Крыша и кровля
Стропильная система Обрезная доска 40 х 150 мм (50х200мм)  (естественной влажности), с шагом 0,8 м(+/- 5см). С прокладкой паро-гирдоизоляции (Изоспан или его аналоги) и контр-обрешеткой 20х50 мм.
Обрешетка Обрезная доска 100 х 20 мм (естественной влажности), с шагом 20-30см.
Кровля Волнистый битумный лист Ондулин (возможен выбор расцветки: шоколад, бордо, зеленая листва)
Высота конька 3,5 м
Выпуски, свесы 0,30 м. Подшиваются хвойной вагонкой камерной сушки
Фронтоны Доска обрезная  40х150мм (50х200 мм.) (естественной влажности) с шагом 0.58  м., с парогидроизоляцией Изоспан A снаружи (или его аналоги) и  контр-рейкой 20х50мм. с утеплением 150\200 мм. (каменная вата RockWool или ее аналоги). Внутри прокладывается парогидроизоляция Изоспан B  (или его аналоги). Снаружи и внутри обшиваются хвойной вагонкой (камерной сушки).
Стены полуторного этажа  Доска обрезная  40х150мм (50х200 мм.) (естественной влажности) с шагом 0.58 м, с парогидроизоляцией Изоспан A снаружи (или его аналоги) и  контр-рейкой 20х50мм. с утеплением 150\200 мм. (каменная вата RockWool или ее аналоги). Внутри прокладывается парогидроизоляция Изоспан B  (или его аналоги). Снаружи и внутри обшиваются хвойной вагонкой (камерной сушки). 
Отделка и дополнения
Потолок 1-го этажа Зашиваются хвойной вагонкой (класса А, В ) камерной сушки
По стыкам стен потолка / пола внутри помещений Обшиваются деревянным плинтусом
Утепление – пол Минеральная вата КНАУФ 150 мм (200 мм)(либо аналоги) с прокладкой паро-гидроизоляции Изоспан В
Утепление межэтажного перекрытия Минеральная вата КНАУФ 50 мм (либо аналоги) с прокладкой паро-гидроизоляции Изоспан В
Потолок полуторного этажа Минеральная вата КНАУФ 150 мм (200 мм) (либо аналоги) с прокладкой паро-гидроизоляции Изоспан B. Обшиваются хвойной вагонкой (класса А , В) камерной сушки (стыки допускаются)
Перегородки полуторного этажа Доска обрезная  40х100 мм. (естественной влажности) с шагом 0.58 м обшивается хвойной вагонкой (камерной сушки).  Утепление не выполняется
Двери Входная: металлическая утепленная (производство Россия)
Межкомнатные: филенчатые
Обналиченные с отделкой откосов
Окна Деревянные имитация стеклопакета с двойным остеклением: 1,0х1,2 м. 0,6х1,2 м., 1,5х1,2 м. и 0,6х0,6 м, обналиченные с отделкой откосов. Комплектуются фурнитурой. Над окнами устанавливаются отливы. На 1,5 этаже оконные проемы заполняются монтажной пеной
Лестница С приступком, одномаршевая.  Устанавливаются ступени.
Терраса Устанавливаются столбы с усадочными лифтами (домкратами), перила с плоскими балясинами. Потолок зашивается хвойной вагонкой (класса А, В) камерной сушки
Проемы окон и дверей Устанавливаются деревянные направляющие  (ройки)
Под усадку
Фундамент и основание дома
Фундамент По желанию Заказчика (не входит в стоимость дома)
Обвязка Не строганный брус 150х150 мм (200x150 мм) естественной влажности
Половые лаги (усиленные) Брус 100х150 мм (100х200 мм), с шагом 0,8 м (+/- 5 см)
Черновой пол Обрезная доска 20x100 мм (естественной влажности) укладывается «всплошную» по череповым брускам 40x50 мм (естественной влажности)
Стены и перегородки
Стены 1 этажа Профилированный (строганный) брус  (140х140 мм / 140х190 мм). естественной влажности. Тип бруса на выбор: полукруг (под блок-хаус) или прямой. Все проемы окон и дверей перевязываются.
Перегородки 1 этажа Профилированный брус сечением 90х140 мм естественной влажности
Сборка сруба Венцы между собой собираются на деревянные берёзовые нагеля. Между венцами прокладывается джут
Рубка углов Теплый угол
Высота потолков 1 этаж – 2,30 м +/- 5 см (17 венцов) 2 этаж – 2,30 м +/- 5 см
Межэтажные перекрытия/подстропильные Доска обрезная  40х150мм (50х200 мм.) (естественной влажности) с шагом 0,8 м(± 5см)
Крыша и кровля
Стропильная система Обрезная доска 40 х 150 мм (50х200мм)  (естественной влажности), с шагом 0,8 м(+/- 5см). С прокладкой паро-гирдоизоляции (Изоспан или его аналоги) и контр-обрешеткой 20х50 мм.
Обрешетка Обрезная доска 100х20 мм (естественной влажности), с шагом 20-30 см
Кровля Волнистый битумный лист Ондулин (возможен выбор расцветки: шоколад, бордо, зеленая листва)
Высота конька 3,5 м
Выпуски, свесы 0,30 м. Подшиваются хвойной вагонкой камерной сушки
Полуторный этаж
Фронтоны Доска обрезная  40х150мм (50х200 мм.) (естественной влажности) с шагом 0.58 м., с парогидроизоляцией Изоспан A снаружи (или его аналоги) и  контр-рейкой 20х50мм.
Стены полуторного этажа Доска обрезная  40х150мм (50х200 мм.) (естественной влажности) с шагом 0.58 м,
Отделка и дополнения
Перегородки Доска обрезная  40х100 мм. (естественной влажности) с шагом 0.58 м
Терраса Устанавливаются столбы с усадочными лифтами (домкратами).
Дополнительные услуги
Свайно-винтовой фундамент 99 000 руб.
Двойная обвязка основания 28 800 руб.
Обработка основания, лаг, черновых полов 25 000 руб.
Сухой профилированный брус 140х140мм 99 300 руб.
Сухой профилированный брус 190х140мм 105 400 руб.
Дополнительный венец из бруса 140х140мм 24 500 руб.
Замена деревянных окон на двухкамерные окна ПВХ 55 400 руб.
Замена кровли на металлочерепицу «СуперМонтеррей» (толщина 0,40-0,45мм) 48 400 руб.
Водосточная система для крыши пластиковая (цвет на выбор: коричневый, белый) 50 400 руб.
Бытовка 2х3м для проживания бригады 27 000 руб.
Аренда генератора на весь срок строительства (бензин заказчика) 7 500 руб.
Пружинный узел Сила 250 руб./шт.
Деревянный туалет 15 000 руб.
Обработка стропильной системы и порешетника 36 000 руб.
Замена размерности бруса перегородок на 140х140 мм. 41 200 руб.
Замена половой доски на 36 мм 19 100 руб.
Уменьшение шага половых лаг, стропильной системы и межэтажного перекрытия на 0,6 м. 38 800 руб.
Дополнительный венец из бруса 190х140мм 31 500 руб.
Итоговая стоимость: 1365000 руб. Оставить заявку
Рекомендуемые проекты

Остались вопросы?

оставьте Ваш телефон и мы перезвоним Вам в ближайшее время


    Нажимая на кнопку, вы даете согласие на обработку персональных данных