Бесплатно по России
8 800 200 68 98
Телефон в С-Пб
8 812 409 39 93
Перезвонить мне
Каталог домов
Фильтр
Площадь, м
Этажность
Общая площадь, м2

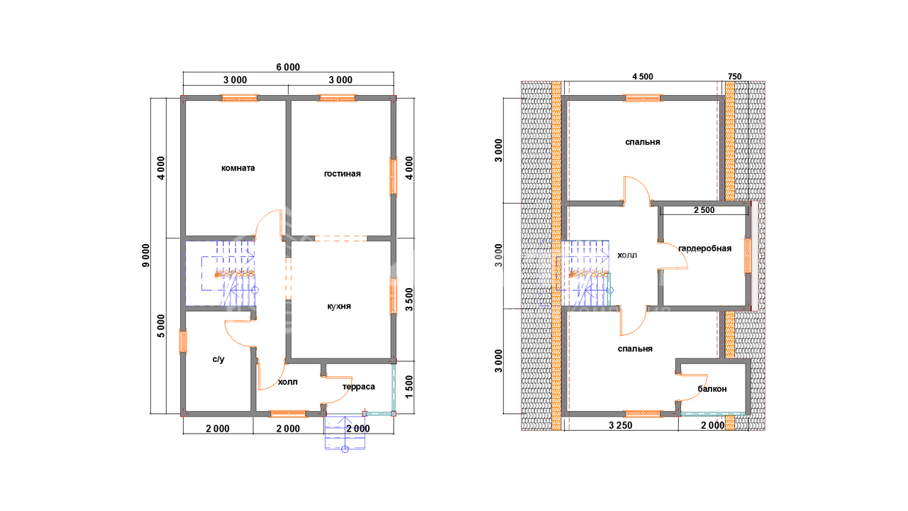
Проект «Ладва Д-4»

Размеры: 6x9 м  |  Площадь: 94 кв.м  |  С мансардным этажом
Построим в каркасном исполнении
Стоимость под ключ
Стоимость под усадку
Общее описание и комплектация дома
Под ключ
Фундамент и основание дома
Фундамент По желанию Заказчика (не входит в стоимость дома)
Обвязка Не строганный брус 150х150 мм (200×150 мм) естественной влажности
Половые лаги (усиленные) Брус 100х150 мм, с шагом 80 см (+/- 5 см)
Черновой пол Доска обрезная 20×100 мм. (естественной влажности) укладывается «всплошную» по череповым брускам 40×50 мм. (естественной влажности)
Чистовой пол Доска шпунтованная половая 28 мм. камерной сушки
Стены и перегородки
Стены 1 этажа Профилированный (строганный) брус 90х140 мм (140х140 мм / 190×140 мм) Естественной влажности. Тип бруса на выбор: полукруг (под блок-хаус) или прямой
Перегородки 1 этажа Брус профилированный сечением 90х140 мм. естественной влажности
Сборка сруба Венцы между собой собираются на деревянные берёзовые нагеля. Между венцами прокладывается джут.
Рубка углов Теплый угол
Высота потолков 1 этаж 2,30 +/- 5см (17 венцов), 2 этаж 2,25 +/- 5см
Межэтажное перекрытие Обрезная доска 40 х 150 мм(естественной влажности) с шагом 80 см(+/- 5см)
Крыша и кровля
Стропильная система Обрезная доска 40 х 100 мм (естественной влажности)  с шагом 80(+/- 5см). С прокладкой паро-гирдоизоляции (Изоспан или его аналоги) и контр-обрешеткой 20х50 мм.
Обрешетка Доска обрезная 20 х 100 мм. (естественной влажности), с шагом 20-30 см.
Кровля Волнистый битумный лист Ондулин (возможен выбор расцветки: шоколад, бордо, зеленая листва)
Высота конька 3,5 м.
Выпуски, свесы 0,30 м. Подшиваются хвойной вагонкой камерной сушки
Фронтоны Обрезная доска 40х100 мм, естественной влажности
Снаружи Зашивается хвойной вагонкой (класса А, В) камерной сушки (стыки допускаются). Устанавливаются вентиляционные решетки
Отделка и дополнения
Потолок 1-го этажа Зашиваются хвойной вагонкой (класса А, В ) камерной сушки
По стыкам стен потолка / пола внутри помещений Обшиваются деревянным плинтусом
Утепление – пол Минеральная вата КНАУФ 50 мм (либо аналоги) с прокладкой паро-гидроизоляции Изоспан В
Утепление межэтажного перекрытия Минеральная вата КНАУФ 50 мм. (либо аналоги) с прокладкой паро-гидроизоляции Изоспан В
Потолок мансарды Минеральная вата КНАУФ 50 мм (либо аналоги) с прокладкой паро-гидроизоляции Изоспан В
Перегородки мансарды Доска обрезная  40х100 мм. (естественной влажности) с шагом 0.8 м. обшивается хвойной вагонкой (камерной сушки).  Утепление не выполняется
Двери Входная: металлическая утепленная (производство Россия)
Межкомнатные: филенчатые
Обналиченные с отделкой откосов
Окна Деревянные имитация стеклопакета с двойным остеклением: 1,0х1,2 м и 0,6х0,6 м, обналиченные с отделкой откосов. Комплектуются фурнитурой. Над окнами устанавливаются отливы
Лестница Дввухмаршевая.  Устанавливаются ступени.
Терраса Устанавливаются столбы с усадочными лифтами (домкратами), перила с плоскими балясинами. Потолок зашивается хвойной вагонкой (класса А, В) камерной сушки
Проемы окон и дверей Устанавливаются деревянные направляющие  (ройки)
Под усадку
Фундамент и основание дома
Фундамент По желанию Заказчика (не входит в стоимость дома)
Обвязка Не строганный брус 150х150 мм (200x150 мм) естественной влажности
Половые лаги (усиленные) Брус 100х150 мм, с шагом 80 см (+/- 5 см)
Черновой пол Доска обрезная 20x100 мм. (естественной влажности) укладывается «всплошную» по череповым брускам 40x50 мм. (естественной влажности)
Стены и перегородки
Стены 1 этажа Профилированный (строганный) брус 90х140 мм (140х140 мм / 140х190 мм) Естественной влажности. Тип бруса на выбор: полукруг (под блок-хаус) или прямой. Все  проемы окон и дверей перевязываются.
Перегородки 1 этажа Брус профилированный сечением 90х140 мм. естественной влажности
Сборка сруба Венцы между собой собираются на деревянные берёзовые нагеля. Между венцами прокладывается джут.
Рубка углов Теплый угол
Высота потолков 1 этаж – 2,30 м +/- 5 см (17 венцов) 2 этаж – 2,25 м +/- 5 см
Межэтажные перекрытия/подстропильные Брус 40х150 мм (естественной влажности) с шагом 80 см(+/- 5см)
Крыша и кровля
Стропильная система Обрезная доска 40х100мм (естественной влажности), с шагом 80 см(+/- 5см). С прокладкой паро-гирдоизоляции (Изоспан или его аналоги) и контр-обрешеткой 20х50 мм.
Обрешетка Обрезная доска 20х100 мм (естественной влажности), с шагом 20-30 см
Кровля Волнистый битумный лист Ондулин (возможен выбор расцветки: шоколад, бордо, зеленая листва)
Высота конька 3,5 м.
Выпуски, свесы 0,30 м. Подшиваются хвойной вагонкой камерной сушки
Мансарда
Фронтоны Обрезная доска 40x100 естественной влажности с шагом 0.8 м. Снаружи обшиваются хвойной вагонкой класса А-B.
Стены мансарды Обрезная доска 40x100 естественной влажности с шагом 0.8 м. Снаружи обшиваются хвойной вагонкой класса А-B.
Дополнения
Терраса Устанавливаются столбы с усадочными лифтами (домкратами).
Дополнительные услуги
Свайно-винтовой фундамент 147 000 руб.
Опорно-столбчатый фундамент 45 000 руб.
Двойная обвязка основания 34 600 руб.
Обработка основания, лаг, черновых полов 40 000 руб.
Сухой профилированный брус 90х140мм 133 000 руб.
Сухой профилированный брус 140х140мм 157 000 руб.
Сухой профилированный брус 190х140мм 173 000 руб.
Дополнительный венец из бруса 90х140мм 27 600 руб.
Дополнительный венец из бруса 140х140мм 35 200 руб.
Замена наружной отделки фронтонов на блок-хаус 39 800 руб.
Замена деревянных окон на двухкамерные окна ПВХ 54 000 руб.
Дополнительное утепление в 50 мм 28 800 руб.
Замена кровли на металлочерепицу «СуперМонтеррей» (толщина 0,40-0,45мм) 70 400 руб.
Водосточная система для крыши пластиковая (цвет на выбор: коричневый, белый) 50 400 руб.
Бытовка 2х3м для проживания бригады 27 000 руб.
Аренда генератора на весь срок строительства (бензин заказчика) 7 500 руб.
Пружинный узел Сила 250 руб./шт.
Деревянный туалет 15 000 руб.
Обработка стропильной системы и порешетника 52 000 руб.
Замена размерности бруса перегородок на 140х140 мм. 60 900 руб.
Замена половой доски на 36 мм 32 800 руб.
Уменьшение шага половых лаг, стропильной системы и межэтажного перекрытия на 0,6 м. 47 200 руб.
Дополнительный венец из бруса 190х140мм 43 800 руб.
Итоговая стоимость: 1600000 руб. Оставить заявку

Остались вопросы?

оставьте Ваш телефон и мы перезвоним Вам в ближайшее время


    Нажимая на кнопку, вы даете согласие на обработку персональных данных