Бесплатно по России
8 800 200 68 98
Телефон в С-Пб
8 812 409 39 93
Перезвонить мне
Каталог домов
Фильтр
Площадь, м
Этажность
Общая площадь, м2

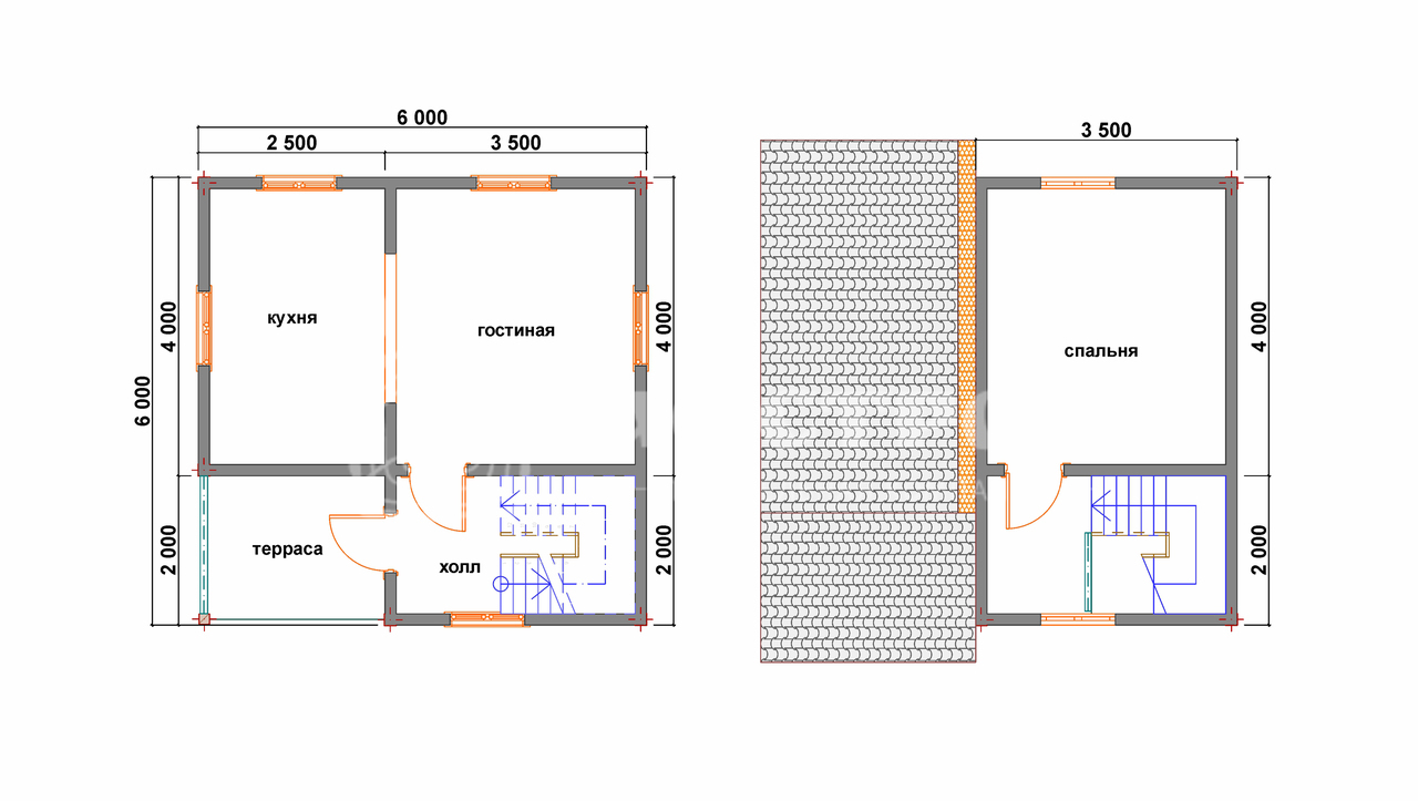
Проект «Пирос Д-1»

Размеры: 6x6 м  |  Площадь: 57 кв.м  |  Полутораэтажный
Построим в каркасном исполнении
Стоимость под ключ
Стоимость под усадку
Общее описание и комплектация дома
Под ключ
Фундамент и основание дома
Фундамент По желанию Заказчика (не входит в стоимость дома)
Обвязка Не строганный брус 150х150 мм. (200×150 мм.) естественной влажности
Половые лаги (усиленные) Брус 100х150 мм. (100х200 мм.) естественной влажности, с шагом 80 см. (+/- 5 см.)
Черновой пол Обрезная доска 20×100 мм (естественной влажности) укладывается «всплошную» по череповым брускам 40×50 мм (естественной влажности)
Чистовой пол Шпунтованная половая доска 28 мм (камерной сушки)
Стены и перегородки
Стены 1 этажа Профилированный (строганный) брус  (140х140 мм. / 190×140 мм.) естественной влажности. Тип бруса на выбор: полукруг (под блок-хаус) или прямой
Перегородки 1 этажа Профилированный брус сечением 90х140 мм
Сборка сруба Венцы между собой собираются на деревянные берёзовые нагеля. Между венцами прокладывается джут
Рубка углов Теплый угол
Высота потолков 1 этаж 2,30 +/- 5см (17 венцов), полуторный этаж 2,30 +/- 5см
Межэтажные перекрытия/подстропильные Доска обрезная  40х150 мм. (50х200 мм.) (естественной влажности) с шагом 0,8 м. (± 5см.) с паро-гидроизоляцией Изоспан (или его аналоги)
Крыша и кровля
Стропильная система Доска обрезная 40 х 150 мм. (50 х 200мм.)  (естественной влажности), с шагом 80 см. (+/- 5см.). С прокладкой паро-гирдоизоляции (Изоспан или его аналоги) и контр-обрешеткой 20х50 мм.
Обрешетка Обрезная доска 20 х 100 мм (естественной влажности), с шагом 20-30см.
Кровля Волнистый битумный лист Ондулин (возможен выбор расцветки: шоколад, бордо, зеленая листва)
Высота конька 3,5 м
Выпуски, свесы 0,35-0,40 м. Подшиваются хвойной вагонкой (камерной сушки)
Полуторный этаж
Фронтоны полуторного этажа Доска обрезная  40х150 мм. (50х200 мм.) (естественной влажности) с шагом 0.58 м., с парогидроизоляцией Изоспан A снаружи (или его аналоги) и  контр-рейкой 20х50 мм. с утеплением 150\200 мм. (каменная вата RockWool или ее аналоги). Внутри прокладывается парогидроизоляция Изоспан B  (или его аналоги). Снаружи и внутри обшиваются хвойной вагонкой (камерной сушки).
Стены полуторного этажа Доска обрезная  40х150 мм. (50х200 мм.) (естественной влажности) с шагом 0.58 м, с парогидроизоляцией Изоспан A снаружи (или его аналоги) и  контр-рейкой 20х50мм. с утеплением 150\200 мм. (каменная вата RockWool или ее аналоги). Внутри прокладывается парогидроизоляция Изоспан B  (или его аналоги). Снаружи и внутри обшиваются хвойной вагонкой (камерной сушки). Устанавливаются вентиляционные решетки.
Отделка и дополнения
Потолок 1-го этажа Зашивается хвойной вагонкой (класса А, В ) (камерной сушки)
По стыкам стен потолка / пола внутри помещений Обшиваются деревянным плинтусом
Утепление – пол  1-го этажа Минеральная вата КНАУФ 150 мм. (200 мм.) (либо аналоги) с прокладкой паро-гидроизоляции Изоспан В
Утепление межэтажного перекрытия Минеральная вата КНАУФ 50 мм. (либо аналоги) с прокладкой паро-гидроизоляции Изоспан В
Стены и потолок полуторного этажа Минеральная вата КНАУФ 150 мм. (200 мм.) (либо аналоги) с прокладкой паро-гидроизоляции Изоспан B. Обшиваются хвойной вагонкой (класса А, В) камерной сушки (стыки допускаются)
Перегородки полуторного этажа (указаны в проекте) Доска обрезная  40х100 мм. (естественной влажности) с шагом 0.58 м. обшивается хвойной вагонкой (камерной сушки).  Утепление не выполняется.
Двери Входная: металлическая утепленная (производство Россия)
Межкомнатные: филенчатые
Обналиченные с отделкой откосов
Окна Деревянные имитация стеклопакета с двойным остеклением: 1,0х1,2 м., обналиченные с отделкой откосов. Комплектуются фурнитурой. Над окнами устанавливаются отливы.
Лестница Двухмаршевая.  Устанавливаются ступени.
Терраса Устанавливаются столбы с усадочными лифтами (домкратами), перила с плоскими балясинами. Потолок зашивается хвойной вагонкой (класса А, В) камерной сушки
Проемы окон и дверей 1-го этажа Устанавливаются деревянные направляющие  (ройки)
Под усадку
 
Фундамент и основание дома
Фундамент По желанию Заказчика (не входит в стоимость дома)
Обвязка Не строганный брус 150х150 мм (200x150 мм) естественной влажности
Половые лаги (усиленные) Брус 100х150 мм. (100х200 мм.) естественной влажности, с шагом 80 см. (+/- 5 см.)
Черновой пол Обрезная доска 20x100 мм (естественной влажности) укладывается «всплошную» по череповым брускам 40x50 мм (естественной влажности)
Стены и перегородки
Стены 1-го этажа Профилированный (строганный) брус  (140х140 мм. / 140х190 мм.) естественной влажности. Тип бруса на выбор: полукруг (под блок-хаус) или прямой. Все проемы окон и дверей перевязываются.
Перегородки 1 этажа Профилированный брус сечением 90х140 мм. (естественной влажности)
Сборка сруба Венцы между собой собираются на деревянные берёзовые нагеля. Между венцами прокладывается джут
Рубка углов Теплый угол
Высота потолков 1 этаж – 2,30 м +/- 5 см (17 венцов) 2 этаж – 2,30 м +/- 5 см
Межэтажные перекрытия/подстропильные Доска обрезная  40х150 мм. (50х200 мм.) (естественной влажности) с шагом 0,8 м. (± 5 см.)
Крыша и кровля
Стропильная система Доска обрезная 40 х 150 мм. (50х200 мм.)  (естественной влажности), с шагом 80 см. (+/- 5см). С прокладкой паро-гирдоизоляции (Изоспан или его аналоги) и контр-обрешеткой 20х50 мм.
Обрешетка Обрезная доска 100х20 мм (естественной влажности), с шагом 20-30 см
Кровля Волнистый битумный лист Ондулин (возможен выбор расцветки: шоколад, бордо, зеленая листва)
Высота конька 3,5 м
Выпуски, свесы 0,35-0,40 м. Подшиваются хвойной вагонкой камерной сушки
Полуторный этаж
Фронтоны и стены полуторного этажа Доска обрезная  40х150 мм.  (50х200 мм.) (естественной влажности) с шагом 0.58 м., с парогидроизоляцией Изоспан A снаружи (или его аналоги) и  контр-рейкой 20х50 мм.
Отделка и дополнения
Перегородки Доска обрезная  40х100 мм. (естественной влажности) с шагом 0.58 м.
Терраса Устанавливаются столбы с усадочными лифтами (домкратами).
Дополнительные услуги
Свайно-винтовой фундамент 99 000 руб.
Двойная обвязка основания 28 800 руб.
Обработка основания, лаг, черновых полов 36 000 руб.
Сухой профилированный брус 140х140мм 93 600 руб.
Сухой профилированный брус 190х140мм 99 900 руб.
Дополнительный венец из бруса 140х140мм 29 600 руб.
Замена деревянных окон на двухкамерные окна ПВХ 46 000 руб.
Замена кровли на металлочерепицу «СуперМонтеррей» (толщина 0,40-0,45мм) 44 000 руб.
Водосточная система для крыши пластиковая (цвет на выбор: коричневый, белый) 50 400 руб.
Бытовка 2х3м для проживания бригады 27 000 руб.
Аренда генератора на весь срок строительства (бензин заказчика) 7 500 руб.
Пружинный узел Сила 250 руб./шт.
Деревянный туалет 15 000 руб.
Обработка стропильной системы и порешетника 52 000 руб.
Замена размерности бруса перегородок на 140х140 мм. 37 900 руб.
Замена половой доски на 36 мм 20 300 руб.
Уменьшение шага половых лаг, стропильной системы и межэтажного перекрытия на 0,6 м. 27 600 руб.
Дополнительный венец из бруса 190х140мм 37 800 руб.
Итоговая стоимость: 1266000 руб. Оставить заявку

Остались вопросы?

оставьте Ваш телефон и мы перезвоним Вам в ближайшее время


    Нажимая на кнопку, вы даете согласие на обработку персональных данных